We worked with Niall Burke of Humble Homes to get an accurate and detailed 3D model and lay out the details of building our tiny house. Niall Burke, is the structural engineer that drafted our building plans so we can get to the next phase of our tiny house journey. Niall and his company Humble Homes was the key element in the completion of our custom home plans.
We edited the 3D model of our house through a period a several months. Some changes were made as a consequence of the advice we received from Niall. He guided us through a number of things, including safety clearances we would need for windows and doors.
He was also very accommodating, even when we decided to change the room layout while he was already drafting up the 3D model.
In the end we were ecstatic to get the final model and plans. It was our first look into our new home!
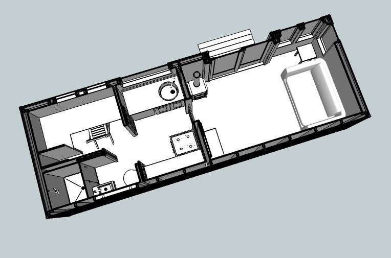
Below are the final 3D models created by Niall incorporating the ideas for our tiny house.
First Floor: (L to R) Great Room, Kitchen, Bathroom, Study

Loft view of bedroom & storage area
Front of house
Our tiny house has a sliding glass door entrance which leads into the great room. This room leads into the kitchen and behind that is a study and bathroom. From the great room we can access the upstairs lofts. The bigger loft will be our bedroom and the smaller one will be for storage and other miscellaneous uses. Another feature we love about our tiny house is the fold down porch. We took the inspiration from Tall Man’s Tiny House. This porch folds up during transportation but when parked, will serve as a porch area with an awning attached. In a tiny house, the little details are the most important and exciting.
We also opted for numerous windows on the south side of the house. This creates an illusion of space. For practical purposes, it utilizes sunlight to our advantage; both for light and heat purposes. The skylights in the great room and the bedroom loft will also facilitate a feeling of spaciousness.
There you have it. A glimpse of our future tiny home.
really love the design, especially the fold down porch and the study
Thank you so much for the complements! We love the fold down porch feature. I hope it looks as amazing once we build it.
I am sure it will!!
How many sq ft is your tiny house (with and without the loft)? I am excited to see the progress.
Thanks so much for your interest!! The house will be 204 sq ft without loft. 260 with loft.
Hi Guys! Like what you are doing here! I am curious about you exterior wood siding. It looks to be a rainscreen installation? Cedar boards? Did you used exposed or hidden fasteners? Looks awesome!
hi greg. thanks for the kind words. we have yet to do the exterior siding but will be using reclaimed wood that we have bought from trestlewood. stay tuned for a post next week when we will be doing the siding work for more details!
Ahh, I was looking at photos of the tall man tiny house that you had posted! I’ll keep an eye for the post next week, thanks!
How about the other features of the home, self contained systems, Grey water, solar Power, etc etc…
we will be having a solar contractor design and help install our solar system. for greywater we will install a branched drain system that will empty out our greywater to multiple mulch basins, and our water will come from two large water storage tanks.
I apologize if you have tried this idea already and I haven’t read it here, but have you tried contacting the larger media outlets to feature your story? I bet there are many specific local media who could would love to hear about your efforts to live simply and reduce your carbon footprint. Even sources like parenting magazines/newspapers and those aimed at retiring seniors would find it interesting. Maybe contact local libraries and community centers, volunteering to host 30-60 minute discussions about your journey so that others may learn and follow. What about tracking down local weekend farmers’ markets where you can pass out a flyer about what you’re doing (or advertise a local discussion that you host), along with an inquiry about land rental opportunities. Any way you can get the word out can drum up some leads on the property you seek.
Hi Sevina. Thank you so much for the suggestions. This is one of the more difficult parts and we need all the help we can get. It is much appreciated!